Loft Conversion in N11
We’ve just completed a stunning loft conversion in N11, transforming an unused attic into a bright, functional living space that adds real value to the home.
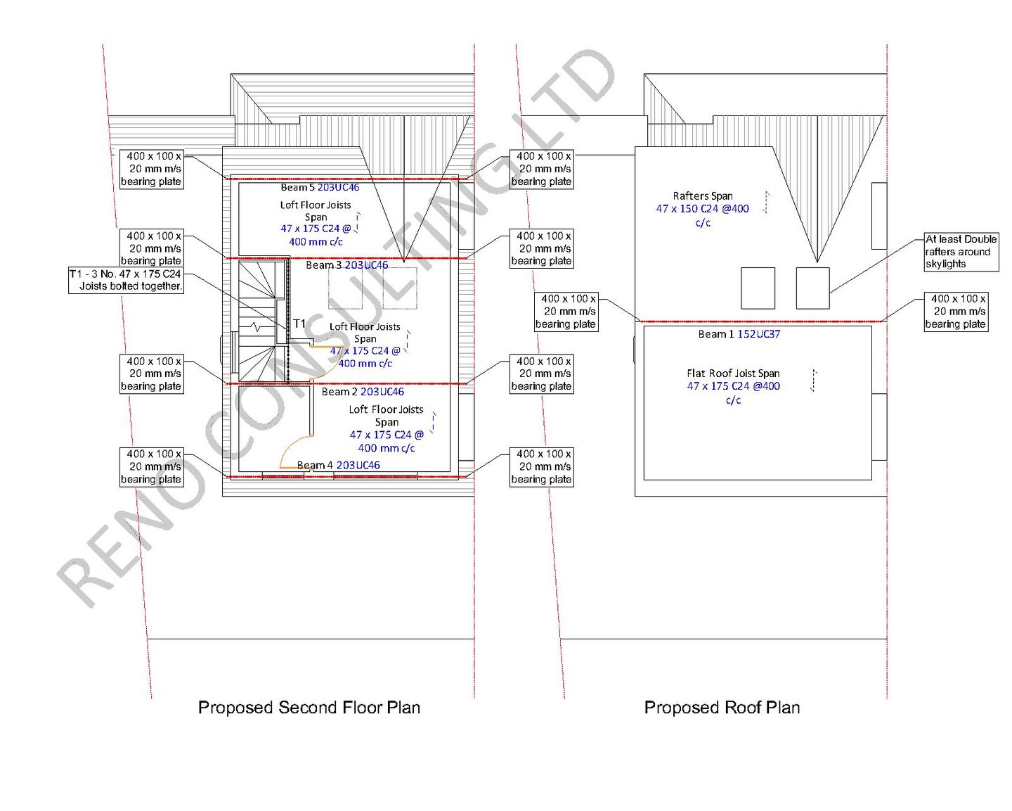
To ensure the loft was structurally sound and ready for everyday use, we installed a combination of steel supports and timber beams, along with reinforced floor and roof joists. These upgrades provide the strength needed to support the additional load of a habitable room while maintaining the overall integrity of the property.
All work was carried out in full compliance with current building regulations, ensuring both safety and long-term durability.




